Facebook
  • Commercial Estate Agents & Property Management

Request Viewing

Full Name

Email

Telephone

Address
Unit 1 (Former Golden Ball), Pilling, PR3 6AA

REF
011469

Message

Village Bar/Bistro/Restaurant

Unit 1 (Former Golden Ball)
Pilling
PR3 6AA

Legal Fees – Incoming tenant to be responsible for the landlords legal fees.


Leasehold

REF: 011469

Brochure
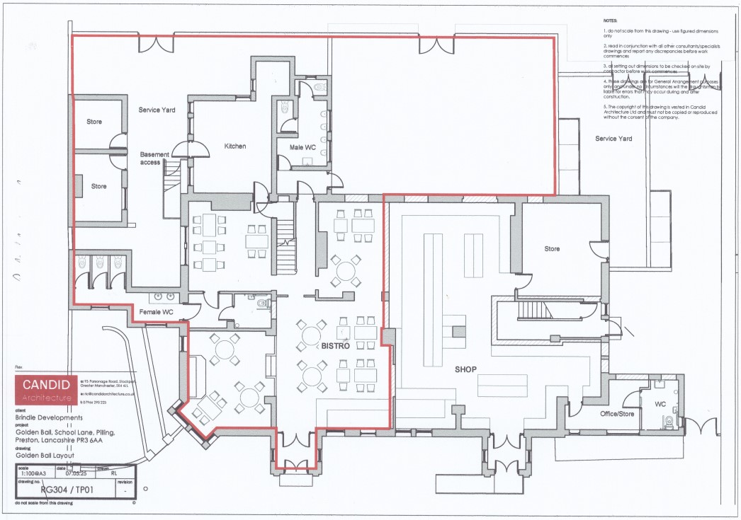
Description: A former village pub that has planning permission and offers an excellent opportunity to re-establish a Bar/Bistro/Restaurant. Located in a prominent corner position in Pilling a village close to Garstang, Poulton, Lancaster and Blackpool. Bar/restaurant area in 4 sections, ladies and gents toilets, kitchen, stores total area approximately 160 square metres plus parking and beer gardens. The unit requires a full fit out. New lease negotiable at a commencing rent of £15,000 per annum.

Location: In the rural village of Pilling which is approximately 14 miles North West of Blackpool, 18.5 miles North West of Preston and 11.5 miles South West of Lancaster.

Lower Ground Floor: Former beer cellars.

Ground Floor: Former Bar/Restaurant in 4 sections, gents and ladies toilets, kitchen, 2 stores.

Exterior: Parking to front, rear fenced beer garden and parking.

Services: All mains services. Gas central heating. 3 Phase electricity.

Tenure: Leasehold. New lease available. Rent £15,000 per annum.

Viewing STRICTLY BY PRIOR TELEPHONE APPOINTMENT THROUGH OUR OFFICE.

Request Viewing

Full Name

Email

Telephone

Address
Unit 1 (Former Golden Ball), Pilling, PR3 6AA

Message

Hotels & Business Sales | Surveyors & Valuers | Established 1948 | All Rights Reserved | Copyright 2025 | Kays Estates