Facebook
  • Commercial Estate Agents & Property Management
SOLD STC

Request Viewing

Full Name

Email

Telephone

Address
262-266 Talbot Road, Blackpool, FY1 3HL

REF
011679

Message

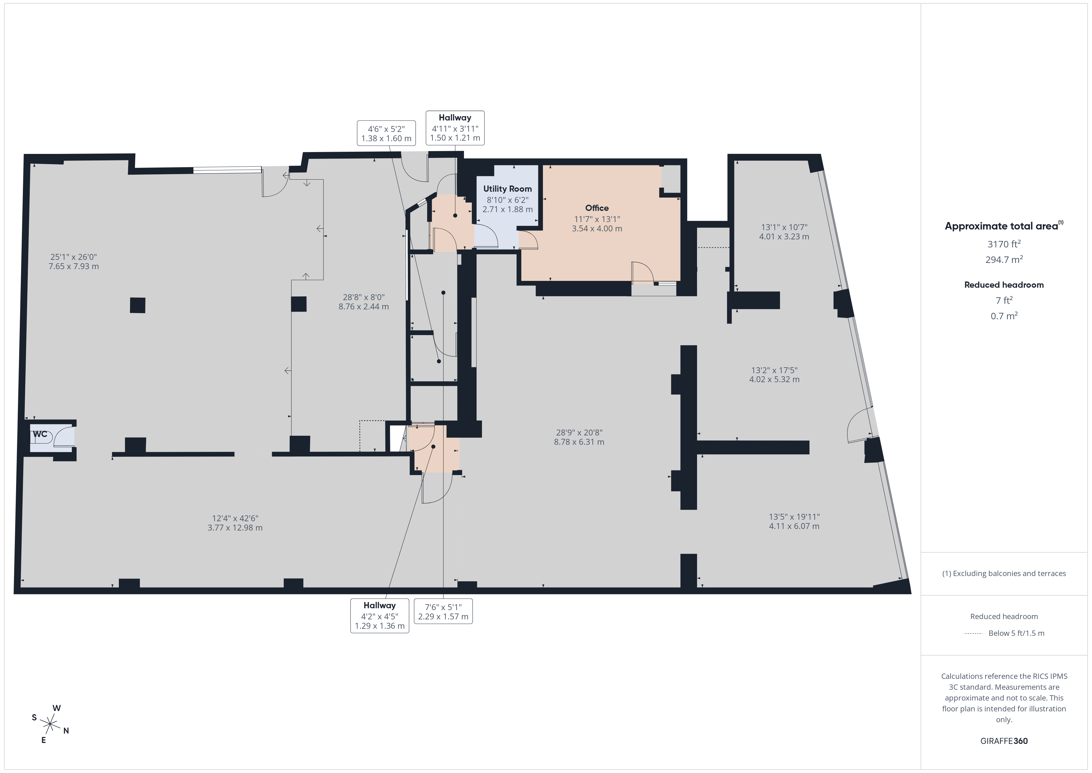
Showroom/Warehouse/Commercial Plus 3 Self Contained Flats

262-266 Talbot Road
Blackpool
FY1 3HL

295000.00

Freehold

REF: 011679

Brochure
Floor Plan
Description: Substantial detached property located in a prominent main road position close to the Town Centre and Blackpool Train Station. The property provides a vacant showroom and warehouse, approx 3,000 sq ft plus 1,000 sq ft mezzanine storage. Side parking and loading. Potential to split. 3 self contained flats to the upper floors all currently let producing £17,400 per annum.

Location: On the Southerly frontage of the main arterial route which is Talbot Road (A586) leading into Blackpool Town Centre. Opposite the Mecca Bingo and Shell petrol station, and within walking distance of the train station, Talbot Road Gateway and Sainsbury's.

Ground Floor: Retail showroom and warehouse mainly open-plan approx. 3000 sqft; two offices; kitchen; 2 toilets; side loading and parking; mezzanine storage to rear approx. 1000 sqft (Some restricted head heights).

First Floor: Upper floors: 3 self contained apartments. All let 2 at £475 and 1 at £500.

Exterior: Side loading and parking.

Viewing STRICTLY BY PRIOR TELEPHONE APPOINTMENT THROUGH OUR OFFICE.

Request Viewing

Full Name

Email

Telephone

Address
262-266 Talbot Road, Blackpool, FY1 3HL

Message

Hotels & Business Sales | Surveyors & Valuers | Established 1948 | All Rights Reserved | Copyright 2026 | Kays Estates